Продам свою 1 ком-ю квартиру в Таировских Садах.
Секция 2-6, сдача II квартал 2022г.
7й этаж.
Окна выходят на главную аллею (бульвар).
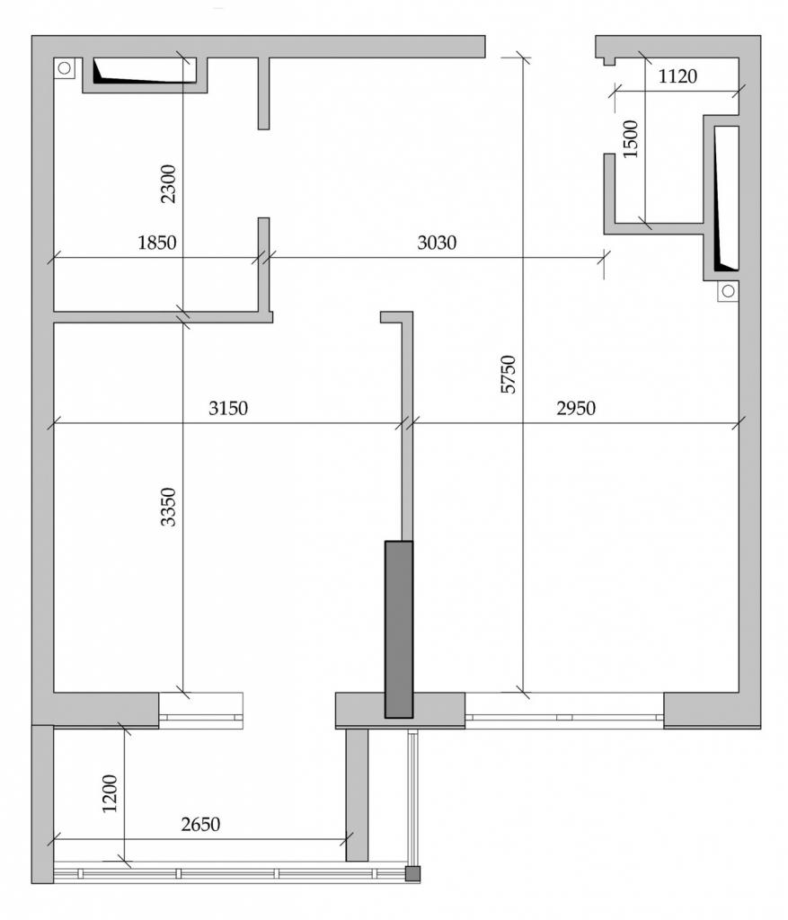
Свободная планировка.
Общая площадь: 36 кв.м;
Кухня: 17.9 кв.м;
Спальная: 10.3 кв.м;
Ванная: 3.8 кв.м;
Лоджия: 2.6 кв.м.
Продажа - по Договору переуступки права (через застройщика).
Цена - 28.000$
Возможен торг!
![]()




Тема:
Ответить с цитированием
Социальные закладки