Тема: Что нам стоит дом построить / Строительство частного дома

Ответить в теме
Страница 2998 из 3006 ПерваяПервая ... 1998 2498 2898 2948 2988 2996 2997 2998 2999 3000 ... ПоследняяПоследняя
Показано с 59,941 по 59,960 из 60120
  1. Вверх #59941
    Живёт на форуме Аватар для Папа-я.
    Пол
    Мужской
    Адрес
    Одесса
    Сообщений
    3,671
    Репутация
    7133
    Цитата Сообщение от МаринаТ. Посмотреть сообщение
    А за домом под садовую дорожку постелили пленку специально от травы, так хватило на пару сезонов. Потом приходилось постоянно ее рвать.
    Трава растет из швов, а не из под плитки. Ветром семена наметает в швы, водичка+солнышко=гербарий.
    Единственный способ борьбы - заполнение швов гарцовкой, но пачкается плитка и отмывать её муторно.
    Отвечай на добро-добром, а на зло-по справедливости.


  2. Вверх #59942
    Постоялец форума
    Пол
    Мужской
    Сообщений
    2,247
    Репутация
    2469
    Я делал так, плитка бесшовная и на бетон и только на бетон от 5 до 10 см в зависимости от нагрузки какая вам надо, и ни в коем случае не на сухой раствор .Лет 10 прошло ни травы ни мусора .Все в идеале чисто красиво, смыть пыль можно даже шлангом с водопровода.
    До солнца рукой подать, а вы мечтаете летать…

  3. Вверх #59943
    Посетитель
    Пол
    Мужской
    Сообщений
    120
    Репутация
    40
    Ребят ,вопрос кто разбирается в стропилке и перекрытии деревянном межэтажном.
    Стены 40 см, армопояс залит. Один этаж, чердак холодный.
    Дом 10200х8200 центральной несущей стены нет. Как это все обыграть, можете подсказать?
    Изображения

  4. Вверх #59944
    Живёт на форуме Аватар для Андрей202
    Пол
    Мужской
    Сообщений
    3,278
    Репутация
    787
    Цитата Сообщение от Lukas Посмотреть сообщение
    Ребят ,вопрос кто разбирается в стропилке и перекрытии деревянном межэтажном.
    Стены 40 см, армопояс залит. Один этаж, чердак холодный.
    Дом 10200х8200 центральной несущей стены нет. Как это все обыграть, можете подсказать?
    Фермы вместо балок. Восемь метров это пыль
    Нетрезвый квантовый механик
    Со ржавым квантовым ключом

  5. Вверх #59945
    Живёт на форуме Аватар для alkor57
    Пол
    Мужской
    Возраст
    48
    Сообщений
    3,364
    Репутация
    1350
    Цитата Сообщение от Lukas Посмотреть сообщение
    Ребят ,вопрос кто разбирается в стропилке и перекрытии деревянном межэтажном.
    Стены 40 см, армопояс залит. Один этаж, чердак холодный.
    Дом 10200х8200 центральной несущей стены нет. Как это все обыграть, можете подсказать?
    Я бы дал денег за просчет конструктором.

  6. Вверх #59946
    Постоялец форума Аватар для nadir
    Пол
    Мужской
    Сообщений
    2,188
    Репутация
    2084
    А я бы вообще не строился сейчас

  7. Вверх #59947
    Посетитель Аватар для zoloto1
    Пол
    Мужской
    Возраст
    55
    Сообщений
    131
    Репутация
    90
    По центру можно залить колону, на неё положить балку. Под колоной обязательно фундамент. Но 100% нужно что бы посчитал специалист на такие дела. Я реализовал свой большой пролёт именно так. Не хотел городить несущих стен по центру дома. Часть чертежа прилагаю. Хотите можете приехать посмотреть в живую. Нажмите на изображение для увеличения
Название: Без імені.jpg
Просмотров: 28
Размер:	24.8 Кб
ID:	13589473
    Перед этим была геодезия + я понимал что будет сверху (какой вес). Удачи.

  8. Вверх #59948
    Посетитель
    Пол
    Мужской
    Сообщений
    120
    Репутация
    40
    Цитата Сообщение от Андрей202 Посмотреть сообщение
    Фермы вместо балок. Восемь метров это пыль
    Можете показать решение? Я не смог найти в интернете, фермы да есть не вопрос, но как это все потом утеплить и собрать?
    Цитата Сообщение от alkor57 Посмотреть сообщение
    Я бы дал денег за просчет конструктором.
    Есть такой специалист, поделитесь контактом)
    Цитата Сообщение от nadir Посмотреть сообщение
    А я бы вообще не строился сейчас
    Возможно Вы правы, но а что делать есть пару рублей куда их вложить, купить биткоин?
    Цитата Сообщение от zoloto1 Посмотреть сообщение
    По центру можно залить колону, на неё положить балку. Под колоной обязательно фундамент. Но 100% нужно что бы посчитал специалист на такие дела. Я реализовал свой большой пролёт именно так. Не хотел городить несущих стен по центру дома. Часть чертежа прилагаю. Хотите можете приехать посмотреть в живую. Вложение 13589473
    Перед этим была геодезия + я понимал что будет сверху (какой вес). Удачи.
    Можно хотя бы фоточку и какой пролет. У меня сделан черновой пол армирован, разбить и сделать такую пятку практически нет возможности.

  9. Вверх #59949
    Не покидает форум Аватар для umaneturman
    Пол
    Женский
    Адрес
    Одесса
    Сообщений
    6,867
    Репутация
    3264
    Цитата Сообщение от nadir Посмотреть сообщение
    А я бы вообще не строился сейчас
    У нас по улице такое бурное строительство с прошлого года, 2 дома уже с нового года как живут, остальные подтягиваются .так что процесс не остановишь
    Я пришла из доброй сказки......выгнали

  10. Вверх #59950
    Частый гость Аватар для Fiara
    Пол
    Женский
    Сообщений
    977
    Репутация
    324
    как вариант балки положить на армопояс, от армопояса сделать доп ребра жесткости для стропил(поднять еще 1-2 ряда блока над армопоясом и мауэрлат устанавливать на него). Ну и крышу только двускатную с опорой на фронтон. но все это с просчетами нужно делать. Обязательно вывести уклон допустимый и самые легкие материалы
    Последний раз редактировалось Fiara; 05.08.2023 в 15:01.

  11. Вверх #59951
    Посетитель Аватар для Nikterm
    Пол
    Мужской
    Сообщений
    386
    Репутация
    100
    Цитата Сообщение от Lukas Посмотреть сообщение
    Ребят ,вопрос кто разбирается в стропилке и перекрытии деревянном межэтажном.
    Стены 40 см, армопояс залит. Один этаж, чердак холодный.
    Дом 10200х8200 центральной несущей стены нет. Как это все обыграть, можете подсказать?
    Вам правильно подсказал "Андрей 202",что вам нужны "фермы" на вашу длину(образцы на рисунке) там их десятки разновидностей. А вы знали что вам придется делать перекрытие без "центральной" несущей стены,или ригеля?.. Может нужно было сначала "примеряться" с перекрытием, да и вообще по материалам,может что-то нашли на вашу коробку и без гемороя?).. На эту тему есть такая поговорка;"мы сначала создаем себе проблемы,а потом ищем пути их решения"... и это 80% таких на сайтах по стройке.
    Если бы вы обратились к нам по коробке,перекрытию с длиной балок-8,25м.,где в полном комплексе и ничего не нужно докупать,искать и утеплять, где все продумано по системе "лего",то уже забыли за коробку-).."Скажу вам больше,что иногда время дороже за те материалы"
    Как то было много критики по нашему перекрытию, да и мат.в целом, что оно дороже и т.д.(коробка в комплексе выходит экономнее,чем то что вы будете покупать и подганять по отдельности с двойной работой и доп.инструмент,опалубка и др.) Это перекрытие экономнее по сравнению с "плитой,монолит"и быстрее монтируется, 2-дня полностью с черновым полом(в 2021г. был просчет в сравнении с "плитой", и перекрытие МИАКО было дешевле на 800уе.).. а с деревяным нужно еще поспорить-).. На сегодня, пока не скажу,(у Heluz с весны "2022"подорожание на 40%, а в Украине материалы -на 50/70%) - https://www.youtube.com/watch?v=Dwi7H16KybQ
    Изображения

  12. Вверх #59952
    Посетитель
    Пол
    Мужской
    Сообщений
    120
    Репутация
    40
    Цитата Сообщение от Nikterm Посмотреть сообщение
    Вам правильно подсказал "Андрей 202",что вам нужны "фермы" на вашу длину(образцы на рисунке) там их десятки разновидностей. А вы знали что вам придется делать перекрытие без "центральной" несущей стены,или ригеля?.. Может нужно было сначала "примеряться" с перекрытием, да и вообще по материалам,может что-то нашли на вашу коробку и без гемороя?).. На эту тему есть такая поговорка;"мы сначала создаем себе проблемы,а потом ищем пути их решения"... и это 80% таких на сайтах по стройке.
    Если бы вы обратились к нам по коробке,перекрытию с длиной балок-8,25м.,где в полном комплексе и ничего не нужно докупать,искать и утеплять, где все продумано по системе "лего",то уже забыли за коробку-).."Скажу вам больше,что иногда время дороже за те материалы"
    Как то было много критики по нашему перекрытию, да и мат.в целом, что оно дороже и т.д.(коробка в комплексе выходит экономнее,чем то что вы будете покупать и подганять по отдельности с двойной работой и доп.инструмент,опалубка и др.) Это перекрытие экономнее по сравнению с "плитой,монолит"и быстрее монтируется, 2-дня полностью с черновым полом(в 2021г. был просчет в сравнении с "плитой", и перекрытие МИАКО было дешевле на 800уе.).. а с деревяным нужно еще поспорить-).. На сегодня, пока не скажу,(у Heluz с весны "2022"подорожание на 40%, а в Украине материалы -на 50/70%) - https://www.youtube.com/watch?v=Dwi7H16KybQ
    Нашел информацию и вроде в Одессе есть представители.
    Но я вот что то припоминаю есть такая и наша система, я гдето видел как монтировали даже, только там было все другого цвета))

    Даже спорить не буду что тупанул, но как то понравился мне участок и я решил но к сожалению не все смог предусмотреть.
    Тоесть эта система может решить перекрытие и на нее опереть крышу, я правильно понял?
    Последний раз редактировалось Lukas; 05.08.2023 в 20:59.

  13. Вверх #59953
    Посетитель Аватар для Nikterm
    Пол
    Мужской
    Сообщений
    386
    Репутация
    100
    Цитата Сообщение от Lukas Посмотреть сообщение
    Нашел информацию и вроде в Одессе есть представители.
    Но я вот что то припоминаю есть такая и наша система, я гдето видел как монтировали даже, только там было все другого цвета))

    Даже спорить не буду что тупанул, но как то понравился мне участок и я решил но к сожалению не все смог предусмотреть.
    Тоесть эта система может решить перекрытие и на нее опереть крышу, я правильно понял?
    Это Вы имеете ввиду систему "Терива" из бетона?.. Да, тип устройства и монтажа также, но Терива уступает по прочности "балок" и расходу бетона. У Теривы балка по ширине 11см. и толщина 4см.,а у МIАКО керамического -балка по шир.-16см. и толщина 6см. Шаг блоков вкладышей,тут не имеет значения.
    Ну,и на счет комплекта, теплопроводности, паропроницаемости и легкости, то тут керамическое выигрывает вдвойне. У Теривы еще есть такой минус, за счет высоты блоков-вкладышей нужно на пару кубов больше бетона с чем и тяжелее становится перекрытие и холодное.

    Вот так каждый второй застройщик, "участок понравился, время уходит и т.д". Ну,вы же не велосипед покупаете и не "каруцу", а дом строите на всю жизнь,чтобы был комфорт и бальзам на душе,а не лишь бы построить из чего попало,а потом достраивать/передел. -)..
    Изображения

  14. Вверх #59954
    Посетитель
    Пол
    Мужской
    Сообщений
    120
    Репутация
    40
    Цитата Сообщение от Nikterm Посмотреть сообщение
    Это Вы имеете ввиду систему "Терива" из бетона?.. Да, тип устройства и монтажа также, но Терива уступает по прочности "балок" и расходу бетона. У Теривы балка по ширине 11см. и толщина 4см.,а у МIАКО керамического -балка по шир.-16см. и толщина 6см. Шаг блоков вкладышей,тут не имеет значения.
    Ну,и на счет комплекта, теплопроводности, паропроницаемости и легкости, то тут керамическое выигрывает вдвойне. У Теривы еще есть такой минус, за счет высоты блоков-вкладышей нужно на пару кубов больше бетона с чем и тяжелее становится перекрытие и холодное.

    Вот так каждый второй застройщик, "участок понравился, время уходит и т.д". Ну,вы же не велосипед покупаете и не "каруцу", а дом строите на всю жизнь,чтобы был комфорт и бальзам на душе,а не лишь бы построить из чего попало,а потом достраивать/передел. -)..
    Что сделано то сделано)) надо просто найти оптимальное решение и закрыть вопрос. А если купить отдельно балку и на нее опереть деревянные и утеплить? Ну мне просто не нужен 2 этаж. А покупать заполнение чтоб оно было чердаком не вариант.

  15. Вверх #59955
    Посетитель Аватар для Nikterm
    Пол
    Мужской
    Сообщений
    386
    Репутация
    100
    Цитата Сообщение от Lukas Посмотреть сообщение
    Что сделано то сделано)) надо просто найти оптимальное решение и закрыть вопрос. А если купить отдельно балку и на нее опереть деревянные и утеплить? Ну мне просто не нужен 2 этаж. А покупать заполнение чтоб оно было чердаком не вариант.
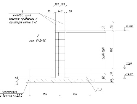
    Я вас не заставляю покупать, я описал вам как нужно было поступить. А у вас вышло как вышло,(выше я написал поговорку),..и балку "одну" мы не продаем.(она вам не подойдет) У нас завод считает полностью материал по вашему проекту на коробку и выдает "калькуляцию" по каждому виду/элементу с "сеткой"перекрытия, раскладки балок и блоков вкладышей по осям. (образец раскладки перекрытия)
    Я имел ввиду что, если бы вы заказывали от "фундамента" -это полный комплект на коробку с доставкой на объект (только нужен смеситель и две бадьи по 40-50литров)
    Изображения

  16. Вверх #59956
    Посетитель
    Пол
    Мужской
    Сообщений
    120
    Репутация
    40
    А кто может сделать в Одессе стропильную висячую ферму?

  17. Вверх #59957
    Живёт на форуме Аватар для Grafitor
    Пол
    Мужской
    Адрес
    Одесса
    Сообщений
    4,376
    Репутация
    8989
    Цитата Сообщение от Lukas Посмотреть сообщение
    А кто может сделать в Одессе стропильную висячую ферму?
    Есть учебник для строительных вузов Линович Л.Е там есть примеры расчетов любой стропильной системы. Ферма для вашего случая не подходит.Придется делать колонны или пилястры с реконструкцией фундаментов..хотя уже стены сделаны.

    Делайте простую стропильную систему конечно с подбором сечения по расчету. Пологаю что 9ти метровых балок не существует.
    Сращивать придется ..но и место сращивания тоже по расчету.
    https://books.totalarch.com/files/title/1388.jpg

    https://ireland.apollo.olxcdn.com/v1/files/y7ezcrquv0cd1-UA/image;s=1000x700
    Последний раз редактировалось Grafitor; 21.08.2023 в 21:32.

  18. Вверх #59958
    Постоялец форума
    Пол
    Мужской
    Сообщений
    2,247
    Репутация
    2469
    Можно сделать проще ,кинуть плиты ЖБ ,кстати 9 метров есть такие а на них закрепить стропила это любая бригада строителей делает, и будет у вас или второй этаж или просто полезная площадь ,Другого варианта нет.
    Последний раз редактировалось bereska36; 08.08.2023 в 21:49.
    До солнца рукой подать, а вы мечтаете летать…

  19. Вверх #59959
    Директор Землетрясения Аватар для Igrik
    Пол
    Мужской
    Адрес
    Южная Пальмира Косёлок Потовского
    Возраст
    29
    Сообщений
    23,757
    Репутация
    14584
    Цитата Сообщение от bereska36 Посмотреть сообщение
    Можно сделать проще ,кинуть плиты ЖБ ,кстати 9 метров есть такие а на них закрепить стропила это любая бригада строителей делает, и будет у вас или второй этаж или просто полезная площадь ,Другого варианта нет.
    и стены выдержат и не разъедутся? 9 метров, стена дугой пойдет

    расчет кто то делал? на какую нагрузкуу пояс делали, какую арматуру заложили и сколько?
    Судьба - это не вопрос случая, а вопрос выбора. Ее не надо ждать, ее нужно создавать!

  20. Вверх #59960
    Живёт на форуме Аватар для Grafitor
    Пол
    Мужской
    Адрес
    Одесса
    Сообщений
    4,376
    Репутация
    8989
    Цитата Сообщение от Igrik Посмотреть сообщение
    и стены выдержат и не разъедутся? 9 метров, стена дугой пойдет

    расчет кто то делал? на какую нагрузкуу пояс делали, какую арматуру заложили и сколько?
    Стены продольные ослаблены проемами. Расчетный пролет для балок 7400.
    https://forumodua.com/attachment.php...ttachment.php?

    Для стен предусмотреть контрфорсы ,так как кладка уже выполнена.
    Последний раз редактировалось Grafitor; 08.08.2023 в 23:29.


Ответить в теме
Страница 2998 из 3006 ПерваяПервая ... 1998 2498 2898 2948 2988 2996 2997 2998 2999 3000 ... ПоследняяПоследняя

Социальные закладки

Социальные закладки

Ваши права

  • Вы не можете создавать новые темы
  • Вы не можете отвечать в темах
  • Вы не можете прикреплять вложения
  • Вы не можете редактировать свои сообщения