Тема: Перепланировки ЖК "Пятнадцатая Жемчужина" от KADORR Group (ул.Архитекторская)

Ответить в теме
Страница 2 из 4 ПерваяПервая 1 2 3 4 ПоследняяПоследняя
Показано с 21 по 40 из 67
  1. Вверх #21
    Посетитель Аватар для Drifter.
    Пол
    Мужской
    Сообщений
    343
    Репутация
    62
    Завтра последний день для утверждения перепланировок!!!


  2. Вверх #22
    Посетитель Аватар для Scarlett_
    Пол
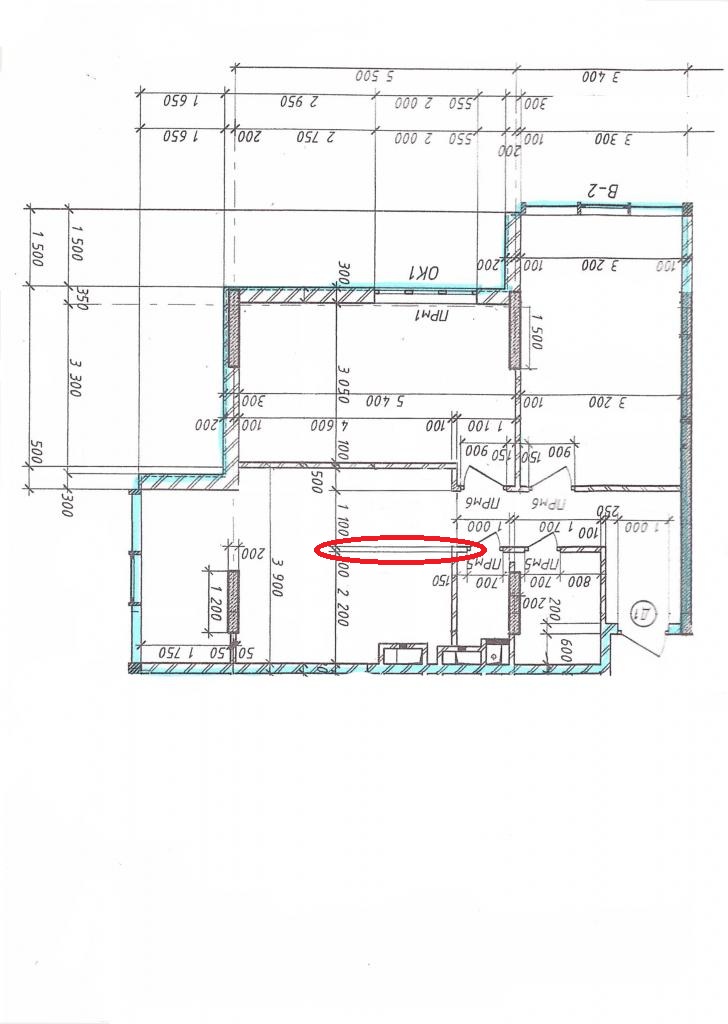
    Женский
    Сообщений
    253
    Репутация
    66
    Мы перенесли стенку между кухней и комнатой - получилась кухня-студия (24 кв.м.). В комнате возле кухни будет детская, вторую комнату совместили с лоджией - будет спальня

  3. Вверх #23
    Посетитель Аватар для Scarlett_
    Пол
    Женский
    Сообщений
    253
    Репутация
    66
    Рг[QUOTE=Maxim_;52416957]Ну да((( Мы хотим разделить 2-ой с.у на с.у. и кладовку небольшую и вот думаем над гардеробной...Конечно не хотелось бы терять пространство ,но эта кишка...это что-то)))). Да и вечная нехватка мест для хранения делает свое дело[. А мы проблему с нехваткой мест для хранения решили по другому - купили сегодня кладовку

  4. Вверх #24

  5. Вверх #25
    Новичок
    Пол
    Мужской
    Сообщений
    5
    Репутация
    10
    с пятого раза как-то так получилось

  6. Вверх #26
    Посетитель Аватар для Alarik
    Пол
    Мужской
    Сообщений
    390
    Репутация
    74
    Цитата Сообщение от МАКСИМ .. Посмотреть сообщение
    нет доступа к Вашему файлу

  7. Вверх #27
    Новичок
    Пол
    Мужской
    Сообщений
    5
    Репутация
    10
    плохо. я полчаса выкладывал и не получилось

  8. Вверх #28
    Посетитель Аватар для Drifter.
    Пол
    Мужской
    Сообщений
    343
    Репутация
    62
    Цитата Сообщение от Scarlett_ Посмотреть сообщение
    Мы перенесли стенку между кухней и комнатой - получилась кухня-студия (24 кв.м.). В комнате возле кухни будет детская, вторую комнату совместили с лоджией - будет спальня
    Интересно вы что еще уже сделали комнату возле кухни,она и так 3,05м,куда еще уже?Если возможно покажите план. А спальня соединенная с лоджией еще больше становится вытянутой!!

  9. Вверх #29
    Посетитель Аватар для Scarlett_
    Пол
    Женский
    Сообщений
    253
    Репутация
    66
    Нажмите на изображение для увеличения
Название: 1.jpg
Просмотров: 78
Размер:	57.2 Кб
ID:	9085448

    Вот наша планировка. Не знаю, будет ли открываться. Согласна, что часть детской, где будет стоять кровать, немного узковата, но решили "пожертвовать" ради большой кухни, так как все-таки основное место общения нашей семьи - кухня ))
    Спальня не будет вытянутой, так как мы разделим ее на зоны, когда будем создавать интерьер

  10. Вверх #30
    Посетитель Аватар для Drifter.
    Пол
    Мужской
    Сообщений
    343
    Репутация
    62
    Цитата Сообщение от Scarlett_ Посмотреть сообщение
    Вложение 9085448

    Вот наша планировка. Не знаю, будет ли открываться. Согласна, что часть детской, где будет стоять кровать, немного узковата, но решили "пожертвовать" ради большой кухни, так как все-таки основное место общения нашей семьи - кухня ))
    Спальня не будет вытянутой, так как мы разделим ее на зоны, когда будем создавать интерьер
    какое там расстояние от стенки до перегородки в детской где будет стоять кровать?

  11. Вверх #31
    Посетитель Аватар для Scarlett_
    Пол
    Женский
    Сообщений
    253
    Репутация
    66
    Оставили 1,7м. Потом посмотрим, там будет или кровать или шкаф

  12. Вверх #32
    Новичок Аватар для ЯркаяЯ
    Пол
    Женский
    Адрес
    Одесса
    Возраст
    41
    Сообщений
    13
    Репутация
    20
    Нажмите на изображение для увеличения
Название: Квартирка.jpg
Просмотров: 91
Размер:	65.7 Кб
ID:	9086487

    Вот наша угловая двушка...
    Был и другой вариант перепланировки:
    Хотели там, где кухня, сделать спальню, а при входе убрать все стены и сделать кухню-столовую. Не разрешили на месте кухни сделать спальню, вернее сказали БТИ не одобрит, а так на наш страх и риск) мы решили не рисковать

  13. Вверх #33
    Посетитель Аватар для Scarlett_
    Пол
    Женский
    Сообщений
    253
    Репутация
    66
    Цитата Сообщение от ЯркаяЯ Посмотреть сообщение
    Вложение 9086487

    Вот наша угловая двушка...
    Был и другой вариант перепланировки:
    Хотели там, где кухня, сделать спальню, а при входе убрать все стены и сделать кухню-столовую. Не разрешили на месте кухни сделать спальню, вернее сказали БТИ не одобрит, а так на наш страх и риск) мы решили не рисковать
    У вас будет дополнительная перегородка на кухне?

  14. Вверх #34
    Посетитель Аватар для Drifter.
    Пол
    Мужской
    Сообщений
    343
    Репутация
    62
    Цитата Сообщение от Scarlett_ Посмотреть сообщение
    У вас будет дополнительная перегородка на кухне?
    Это не перегородка,а снос размера,толщина межкомнатной стены показано!

  15. Вверх #35
    Посетитель Аватар для Scarlett_
    Пол
    Женский
    Сообщений
    253
    Репутация
    66
    Цитата Сообщение от Drifter. Посмотреть сообщение
    Это не перегородка,а снос размера,толщина межкомнатной стены показано!
    Где снос размера я поняла Но вот на расстоянии 2 200 мм от внешней стены (слева от входа на кухню) нарисована по-моему еще какая-то перегородка, может я ошибаюсь...

  16. Вверх #36
    Посетитель Аватар для Drifter.
    Пол
    Мужской
    Сообщений
    343
    Репутация
    62
    Цитата Сообщение от Scarlett_ Посмотреть сообщение
    Где снос размера я поняла Но вот на расстоянии 2 200 мм от внешней стены (слева от входа на кухню) нарисована по-моему еще какая-то перегородка, может я ошибаюсь...
    Нажмите на изображение для увеличения
Название: attachment.jpg
Просмотров: 62
Размер:	109.7 Кб
ID:	9088967
    Обведено красным, это и есть снос размера!

  17. Вверх #37
    Посетитель Аватар для Scarlett_
    Пол
    Женский
    Сообщений
    253
    Репутация
    66
    Цитата Сообщение от Drifter. Посмотреть сообщение
    Вложение 9088967
    Обведено красным, это и есть снос размера!
    Спасибо. Сорри - "включила" блондинку

  18. Вверх #38
    Новичок Аватар для julli15
    Пол
    Женский
    Сообщений
    43
    Репутация
    17
    наш вариант угловой двушки. Решили для прихожей сделать больше места и чтобы было куда шкаф поставить - подвинули двери в лево, а так как нам коридор показался узким, подвинули стенку комнаты за счет сноса перегородки на лоджию.
    Изображения

  19. Вверх #39
    Посетитель Аватар для Alarik
    Пол
    Мужской
    Сообщений
    390
    Репутация
    74
    Двушка возле лифта
    Нажмите на изображение для увеличения
Название: 15Ж проект.jpg
Просмотров: 93
Размер:	252.6 Кб
ID:	9106934

  20. Вверх #40
    Посетитель Аватар для Scarlett_
    Пол
    Женский
    Сообщений
    253
    Репутация
    66
    Цитата Сообщение от Alarik Посмотреть сообщение
    Двушка возле лифта
    Вложение 9106934
    на мой взгляд ваш вариант планировки очень удачный, мы бы тоже так сделали


Ответить в теме
Страница 2 из 4 ПерваяПервая 1 2 3 4 ПоследняяПоследняя

Похожие темы

  1. ЖК "Пятая Жемчужина" от KADORR Group (ул.Архитекторская)
    от CoffeeTime в разделе Недвижимость
    Ответов: 40622
    Последнее сообщение: 05.07.2023, 17:32
  2. ЖК " 11я Жемчужина" (ул. Малиновского) "Kadorr group"
    от Laris@ в разделе Недвижимость
    Ответов: 4645
    Последнее сообщение: 17.02.2020, 10:48
  3. Ответов: 448
    Последнее сообщение: 21.09.2018, 10:52

Социальные закладки

Социальные закладки

Ваши права

  • Вы не можете создавать новые темы
  • Вы не можете отвечать в темах
  • Вы не можете прикреплять вложения
  • Вы не можете редактировать свои сообщения