Тема: Хочу кондиционер :) ! Прошу совета.

Ответить в теме
Страница 402 из 1796 ПерваяПервая ... 302 352 392 400 401 402 403 404 412 452 502 902 1402 ... ПоследняяПоследняя
Показано с 8,021 по 8,040 из 35904
  1. Вверх #8021
    Не покидает форум
    Пол
    Мужской
    Сообщений
    9,235
    Репутация
    1419
    Цитата Сообщение от kilabee Посмотреть сообщение
    Доброй ночи, порекомендуйте, пожалуйста, как и какими сплитами или мультисплит.системой инверторного типа оборудовать квартиру? бюджет мероприятия 4-4,5 усл.
    Заранее спасибо!
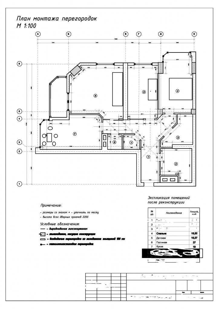
    Это конечно интересно, но за чем экспликацию помещений убирать, я понимаю наименования объекта, адрес, этаж
    Зачем было вычеркивать пункт 1 это понятно коридор, 8- санузел, 9 нет вентиляции может что угодно
    помещения 2 ванная комната вентиляция там есть, помещение 3 остается загадкой
    к чему такая таинственность в предназначении помещений??
    я не спец по кондеям но думаю не лишним было бы указать направление на север дабы спецам было легче понять где солнечная сторона у дома


  2. Вверх #8022
    Не покидает форум Аватар для Soxo
    Пол
    Мужской
    Адрес
    Одесса
    Сообщений
    14,098
    Репутация
    2036
    Цитата Сообщение от Jorik83 Посмотреть сообщение
    Это конечно интересно, но за чем экспликацию помещений убирать, я понимаю наименования объекта, адрес, этаж
    Зачем было вычеркивать пункт 1 это понятно коридор, 8- санузел, 9 нет вентиляции может что угодно
    помещения 2 ванная комната вентиляция там есть, помещение 3 остается загадкой
    к чему такая таинственность в предназначении помещений??
    я не спец по кондеям но думаю не лишним было бы указать направление на север дабы спецам было легче понять где солнечная сторона у дома
    Это особой роли не играет в даном случае) обычно такие заказы смотрятся всеравно по месту, хотя и изначлаьно понятно что определили места где требуется наибольший конфорт, да и откинулись подсобные помещения да коридоры.
    С учётом что это не дом а квартира я бы всёж без осмотра по месту не советовал бы категорично , не всезде ещё и 4 наружки поставить можно( хоть и мультиком в даном варианте разница не так велика)
    У него была дурная репутация - он всегда говорил то, что думал.

  3. Вверх #8023
    Частый гость
    Пол
    Мужской
    Сообщений
    607
    Репутация
    95
    Цитата Сообщение от Soxo Посмотреть сообщение
    ) Я то думал когда про ионизацию как глобальную фишку в кондиционере) давно уже забыли , а нет жешь).
    Могу на спор поспорить)) не будь в налике счас HG То говорили бы что и филтация там лучше и.т.д
    Или вы думаете кондишки одного и того же бренда чем дороже тем будут хуже)).
    Инвертор однозначно лучше, другое дело что для вас более важное- экономия энергии, тишина работы, ионизация или фильтры.
    Кстати, кто-то мне говорил, что у SRK25ZJP-S есть какой-то свист, с которым ничего нельзя поделать..Правда?
    Не так давно покупали отдельно ионизатор в квартиру. поэтому, если в кондиционере есть дополнительно функция очистки и ионизации, то только +.
    Для меня это важнее, чем какие-то навароты типа умного дома, которыми как правило пользуешься только один раз при установке.
    пока что тоже склоняюсь к инвертору, но...думаю, тем более на инвертор в любом случае поднакопить еще надо.

  4. Вверх #8024
    Частый гость
    Пол
    Мужской
    Сообщений
    607
    Репутация
    95
    Цитата Сообщение от Soxo Посмотреть сообщение
    )
    Или вы думаете кондишки одного и того же бренда чем дороже тем будут хуже)).
    Я так не думаю, что я могу предположить, так это то, что когда машину модернизуют новой фишкой, в данном случае инвертором, то за ноу-хау всегда поднимают цену.
    Хотя не спорю, что инвертор лучше, просто жалко, что фильтрации нет.

  5. Вверх #8025
    Не покидает форум Аватар для Soxo
    Пол
    Мужской
    Адрес
    Одесса
    Сообщений
    14,098
    Репутация
    2036
    Цитата Сообщение от bullring Посмотреть сообщение
    Кстати, кто-то мне говорил, что у SRK25ZJP-S есть какой-то свист, с которым ничего нельзя поделать..Правда?
    Да тоже не раз слышал ещё со времён Zg-S что есть низкочастотный свист, но сколько не ставили на такое не попадали.
    тут уж скорее от монтажа зависит, хотя когда изучал етот вопрос стрелки косили что шум тот он турбины вентилятора идёт ( ноч естно говоря сам не разу не сталкивался с такими притензиями).
    Ну так если вы купили отдельно ионизатор- чего же для вас так глобально ионизатор в кондишке)? ну очистка понимаю, а ионизация она же и рядом не стоит с отдельными ионизаторами.
    Ну при вашем бюджете супер пупер наворотов тем более умных домов и так не светит, в лучшем случае не плохой Инвертор в стандарт или бизнес исполнении, все навороты и новшества обычно в Люксовых моделях.
    У него была дурная репутация - он всегда говорил то, что думал.

  6. Вверх #8026
    Постоялец форума
    Пол
    Мужской
    Сообщений
    1,217
    Репутация
    206
    Я так не думаю, что я могу предположить, так это то, что когда машину модернизуют новой фишкой, в данном случае инвертором, то за ноу-хау всегда поднимают цену.
    В вашем случае скорее наоборот.
    Цена была поднята ранее, когда в серию пошел инвертор с полным набором функций (фильтры, ионизация, 3DAuto).
    Но ценовой разрыв между неинвертором и инвертором был довольно высоким и чтобы заполнить эту ценовую нишу была предложена "облегченная" модель, в которой от того инвертора остался только инвертор, а все опции были изъяты. Кстати, он и по параметрам слегка похуже инвертора с полным набором опций.
    Если говорить о нужности опций, то в том случае, когда требуется управление направлением потоком по горизонтали (бывает, когда напротив кондиционера периодически находятся люди и надо отводить поток в сторону) функция 3DAuto удобна. Если же кондиционер все время дует на "пустое" место, то полезность этой опции уменьшается.

    Mitsubishi SRK25ZJP-S
    или Mitsubishi SRK28HG
    Экономия электроэнергии (около 60 Ватт) аргумент не слишком убойный.
    Но работа инвертора отличается большим комфортом (темпертатура воздушного потока и уровень шума)
    Кроме того 410-й фреон расширяет диапазон работы на тепло до -15 градусов (опять же , если это нужная опция)

    Если не в спальню и не в детскую, то вполне достаточно Mitsubishi SRK28HG.
    Последний раз редактировалось driver999; 31.01.2011 в 10:12.

  7. Вверх #8027
    Постоялец форума Аватар для ОДЕССА КЛИМАТ
    Пол
    Мужской
    Адрес
    Одесса
    Сообщений
    1,771
    Репутация
    392
    Цитата Сообщение от bullring Посмотреть сообщение
    Насколько я понимаю, у SRK25ZJP-S нет ионизатора
    Правильно понимаете ионизатора в нём нет.(Думаю на 95%, он абсолютно не эффективен).
    Цитата Сообщение от bullring Посмотреть сообщение
    хуже система фильтрации
    Не хуже,а абсолютно одинаковая,фильтры такие же как и в более дорогих моделях,таких как SRK25ZJX-S и SRK25ZJ-S.
    Цитата Сообщение от bullring Посмотреть сообщение
    Прошу совет специалистов, помогите определиться в этих двух кондиционерах.
    SRK25ZJP-S!

  8. Вверх #8028
    Постоялец форума Аватар для ОДЕССА КЛИМАТ
    Пол
    Мужской
    Адрес
    Одесса
    Сообщений
    1,771
    Репутация
    392
    Цитата Сообщение от kilabee Посмотреть сообщение
    Доброй ночи, порекомендуйте, пожалуйста, как и какими сплитами или мультисплит.системой инверторного типа оборудовать квартиру? бюджет мероприятия 4-4,5 усл.
    Заранее спасибо!Вложение 2181990
    Без выезда на объект и понимания примерной расстановки мебели сложно ответить на Ваш вопрос,ещё не маловажную роль будет играть возможность размещения наружных блоков на фасаде (где это можно,а где нельзя).

  9. Вверх #8029
    User banned
    Пол
    Мужской
    Возраст
    57
    Сообщений
    1,217
    Репутация
    171
    человеку с таким бюджетом китаезы не нужны.

  10. Вверх #8030
    Не покидает форум Аватар для Soxo
    Пол
    Мужской
    Адрес
    Одесса
    Сообщений
    14,098
    Репутация
    2036
    Цитата Сообщение от kostyan27101968 Посмотреть сообщение
    человеку с таким бюджетом китаезы не нужны.
    100%. Хотя иной раз присутсвуют компановки, многие для кухни берут что то попроще.
    У него была дурная репутация - он всегда говорил то, что думал.

  11. Вверх #8031
    Не покидает форум Аватар для Soxo
    Пол
    Мужской
    Адрес
    Одесса
    Сообщений
    14,098
    Репутация
    2036
    Цитата Сообщение от klima7 Посмотреть сообщение
    как для квартиры у вас хороший бюджет. При таком бюджете советую обратить внимание на инвертора сплиты Fujitsu General.
    Но если вы хотите ставить в каждой комнате (3-4 сплита на квартиру) обратите внимание на инвертор Neoclima. 09 и 12 модель хорошо себя зарекомендовали:
    http://klima7.at.ua/index/nastennye_kondicionery_neoclima/0-14
    От вам потяге очередной раз рекламить свою ссылку)), я вот только не понял причём тут Инвертор Неоклимы к той моделе что по вашей ссылке)
    У него была дурная репутация - он всегда говорил то, что думал.

  12. Вверх #8032
    Посетитель Аватар для kilabee
    Пол
    Женский
    Адрес
    Одесса
    Сообщений
    295
    Репутация
    316
    Ок, ежели данный маловато, то можно в ЛС - какие-то предложения по конкретнее (Название фирмы, если есть ветка на форуме и моб . чтоб пообщаться)
    Спасибо!
    Данечка пришел к нам 09-09-09!!!

  13. Вверх #8033
    Живёт на форуме Аватар для a_man
    Пол
    Мужской
    Адрес
    Одесса
    Сообщений
    3,118
    Репутация
    829
    Цитата Сообщение от bullring Посмотреть сообщение
    для начала хочу поблагодарить всех за сделанные предложения.
    Выбор почти сделан.
    В финал вышли 2 позиции:
    1) Mitsubishi SRK25ZJP-S
    2) Mitsubishi SRK28HG
    Насколько я понимаю, у SRK25ZJP-S нет ионизатора и хуже система фильтрации, другой не обладнан инвертором и дешевле. Прошу совет специалистов, помогите определиться в этих двух кондиционерах.
    Вашу гостинку лучше охладит инвертор.

    Система фильтрации воздуха у Mitsubishi серии HG работает. У меня есть объект, где в детской установлен SRK20HG, а в зале - SRK35ZJP-S (что потом установили в спальне я не помню). В детской воздух приятней.

    Цитата Сообщение от kilabee Посмотреть сообщение
    Доброй ночи, порекомендуйте, пожалуйста, как и какими сплитами или мультисплит.системой инверторного типа оборудовать квартиру? бюджет мероприятия 4-4,5 усл...
    Бюджет достаточный для качественных инвертров Mitsubishi.
    Подробней в ЛС.
    Нет денег купить новое - береги старое.

  14. Вверх #8034
    User banned
    Пол
    Женский
    Адрес
    Одесса
    Сообщений
    752
    Репутация
    189
    добрый день!
    можно узнать цену на конд-р MIDEA MSG-09ARDN1(DC Inverter)PTC
    спасибо

  15. Вверх #8035
    Посетитель Аватар для moria4ok
    Пол
    Мужской
    Возраст
    46
    Сообщений
    311
    Репутация
    114
    Говорят что пришли GREE,если появились то можно узнать цены,нужна одна 7 и одна 9 и установка,спасибо.

  16. Вверх #8036
    Не покидает форум Аватар для Alpha
    Пол
    Мужской
    Адрес
    Одесса
    Сообщений
    5,403
    Репутация
    2361
    Цитата Сообщение от moria4ok Посмотреть сообщение
    Говорят что пришли GREE,если появились то можно узнать цены,нужна одна 7 и одна 9 и установка,спасибо.
    Пока ещё не зашли... Точных цен пока что так же нет).

  17. Вверх #8037
    Не покидает форум Аватар для Soxo
    Пол
    Мужской
    Адрес
    Одесса
    Сообщений
    14,098
    Репутация
    2036
    Цитата Сообщение от moria4ok Посмотреть сообщение
    Говорят что пришли GREE,если появились то можно узнать цены,нужна одна 7 и одна 9 и установка,спасибо.
    Говорят что коценц света будет и что всему верить). По логике если уж вам говорили такое- то и предложили бы озвучив цену.
    А чего именно Грее? думаете что дешевле альтернатив будут стоить) сомневаюсь. Нынче все бюджетники тем более хорошие практически сравнялись по ценам в плюс минус сотню полторы гришек.
    У него была дурная репутация - он всегда говорил то, что думал.

  18. Вверх #8038
    Посетитель
    Пол
    Мужской
    Адрес
    Одесса
    Возраст
    43
    Сообщений
    160
    Репутация
    29
    Господа эксперты, что скажите о neoclima ns09lhk или как вариант neoclima ns09lhx. Спасибо.

  19. Вверх #8039
    Не покидает форум Аватар для Soxo
    Пол
    Мужской
    Адрес
    Одесса
    Сообщений
    14,098
    Репутация
    2036
    Цитата Сообщение от alexpmr Посмотреть сообщение
    Господа эксперты, что скажите о neoclima ns09lhk или как вариант neoclima ns09lhx. Спасибо.
    Тут всё зависит кто что от кондиционера ожидает. Кому то приоритеты дизайн, кому то фильтры, кому то надёжность и.т.д
    Плохо о них не скажу но в даной ценовой категории куда более оправданы Мидеи, лессары и Гришки). Опять же многие читая их буклет смотрят класс потребления А- гдет за киловат\ч, уровень шума чаще ниже минимального 24-25( при том что в каталоге 26-36 и.т.д и считая о цена такая же но столько переемуществ перед аналогами которые куда чаще советуют). Ну неужто так трудно проконсультироваться, далее найти в инете каталог и посмотреть правду ли говорил консультант советуя ту или иную модель или выбор при таких параметрах куда шире.
    Я скажу проще сугубо по себе- когда нет тех брендов что перечислил выше, с больним удоволсвием склоняюсь к куперам, декерам, неоклимам. Но когда есть надёжное да проверенное не одним днём работы и обслуживаний- то смысл советовать то что даже на грамм может причинить больше гембеля продавцу= потребителю ( конечно это если занимаешься разносторонней техникой и брендами и есть с чем сравнивать).
    В общем модельки не плохи ( хотя в lhx дизайн на любителя, у меня почему то клиенты на повал его не принимают говоря от если бы не лютики то с радостью а так подберите что то более класическое)
    P/S. Если лютики не пугают, то в сравнении этих двух моделей однозначно берите лютики, и примочек побольше и потребление на сотенку меньше
    Последний раз редактировалось Soxo; 02.02.2011 в 15:15.
    У него была дурная репутация - он всегда говорил то, что думал.

  20. Вверх #8040
    Постоялец форума
    Пол
    Мужской
    Сообщений
    1,217
    Репутация
    206
    что скажите о neoclima ns09lhk или как вариант neoclima ns09lhx
    NS09LHK -очень неплохой, проверенный вариант.
    NS09LHX - модель поновее, особой статистики на них пока нет, насчет посимпатичнее-не скажу (у каждого свой вкус, в некоторые интерьеры может неплохо вписаться как раз за счет цветочков), но погабаритнее- это точно; есть парочка дополнительных примочек.
    Энергопотребление на 110 Ватт поменьше, так что свою разницу в цене (около 35 у.е.) уж точно окупит.
    По уровню шума практически одинаковы.
    Насчет альтернатив замечу, что популярная ныне модель Gree Az Cozy будет явно послабее.
    Кстати у Neoclima есть ее полный аналог- более дешевая, чем LHK, модель Breeze (NS09LHB).
    Насчет фразы" куда более оправданы"- вопрос дискуссионный.
    С точки зрения технической эти модели марки практически равнозначны.
    Модели разных марок из одного ценового диапазона практически идентичны по параметрам.
    И в большинстве случаев там стоят совершенно одинаковые компрессора.
    Все остальное зависит от красноречия расказчика.
    И любое, даже небольшое улучшение технических характеристик сразу приводит к небольшому удорожанию модели.


Ответить в теме
Страница 402 из 1796 ПерваяПервая ... 302 352 392 400 401 402 403 404 412 452 502 902 1402 ... ПоследняяПоследняя

Метки этой темы

Социальные закладки

Социальные закладки

Ваши права

  • Вы не можете создавать новые темы
  • Вы не можете отвечать в темах
  • Вы не можете прикреплять вложения
  • Вы не можете редактировать свои сообщения