Тема: Хочу кондиционер :) ! Прошу совета.

Ответить в теме
Страница 143 из 1796 ПерваяПервая ... 43 93 133 141 142 143 144 145 153 193 243 643 1143 ... ПоследняяПоследняя
Показано с 2,841 по 2,860 из 35904
  1. Вверх #2841
    Не покидает форум Аватар для ZlojCrash
    Пол
    Мужской
    Адрес
    Одесса
    Возраст
    53
    Сообщений
    12,340
    Репутация
    4054
    Цитата Сообщение от Livesms Посмотреть сообщение
    Что можете сказать о напольных (мобильных кондиционерах).
    Я живу на сьемной квартире и установить полноценный сплит не могу (жить еще планирую год максимум, хозяйка выдвигает свои условия и т.д.)
    Думаю на покупкой напольного (мобильного кондиционера) - видел в сети Стинол производства BEKO.
    Многие говорят, что они якобы вообще не холодят, другие говорят что нужно правильно пользоваться и т.д.

    Заранее благодарен за любой ответ.
    У нас серверная охлаждается напольником. Все ОК не один год.
    Минусы - отвод конденсата геморойный и надо трубу в форточку выставлять.


  2. Вверх #2842
    Не покидает форум Аватар для Soxo
    Пол
    Мужской
    Адрес
    Одесса
    Сообщений
    14,105
    Репутация
    2038
    Цитата Сообщение от ZlojCrash Посмотреть сообщение
    У нас серверная охлаждается напольником. Все ОК не один год.
    Минусы - отвод конденсата геморойный и надо трубу в форточку выставлять.
    Ну для начала путаете Напольник и Мобильник- бо совсем разные вещи.
    Коли речь пошла о мобильнике- то ныне уже есть варианты де отвод конденсата возможен как в бачок так и отдельные выходы в другую тару пообёмней, с трубой таки да гиморно, не везде покупатели берут в учёт что её нао в окошко выпускать.

    Цитата Сообщение от Livesms Посмотреть сообщение
    Что можете сказать о напольных (мобильных кондиционерах).
    Вот недавние отзывы одного покупателя мобильника да и дет их уже отписывал:
    ---
    Доволен.
    Но вот на счет шума, полностью не согласен! шум как таковой в принципе не мешает, мешает только одно! Жуткий ветер в комнате, на минимальной скорости ветер в комнате крутит шторы, а на максимуме со стола слетают листки, с полки еще чтото вылетает. Один минус, куллер бешеный в нем. от чего и страдаю теперь----

    Мобильник таки советую брать либо на дачу не в особо благонадёжных районах ( де сплит могут попросту зимой спереть наружные блоки) , либо таки сьёмные квартиры, общаги бывало), оснвные покупатели это сьёмные офисы де иной раз просто по фасаду запрещают ставить блоки.
    В иных вариантах лучше брать сплит.
    Веко я бы не советовал, уж если и брать в Маркетах) то лучше В Метро аль Эпицентре " Аляску", если брать чот получше советовал бы " Мидею-MPK1-12ER"
    Последний раз редактировалось Soxo; 11.06.2009 в 10:48.
    У него была дурная репутация - он всегда говорил то, что думал.

  3. Вверх #2843
    мираж Аватар для rosst
    Пол
    Мужской
    Адрес
    black hole
    Возраст
    44
    Сообщений
    2,353
    Репутация
    490
    Народ, подскажите)) читал, читал и понял, что чукча не читатель, чукча - писатель )))) Запутался окончательно.
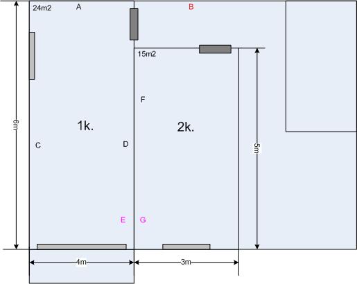
    Думали ставить кондишен в хрущевку двухкомнатную (стандартный панельный дом) - картинка ниже. Естественно (наверное все так по началу думают), предполагалось, что кондер будет один и будет размещаться в коридоре... полазив по форуму, понял, что мнение ошибочное, а также ээм порадовался ценам на всякие хорошие мультисплит системы. Подскажите, если делать с головой, то как лучше поступить - какие кондишены, как ставить. Пока речь о бюджете до 1k зеленых (такой был расклад до углубления в тему), в крайнем случае придется поставить сначала один, а позже в другую.. Но хотелось бы сначала понять, как лучше и какие суммы тут плавают, может и бюджет можно будет подвинуть.

    зы. да.. бывают порой падения напряжения, хотя летом это редкость.. 4х киловатная стиралка заводится нормально, а зимой - сложновато. Инверторы как я понял менее требовательны к напряжению?
    Изображения
    • Тип файла: jpg flat.jpg (15.5 Кб, Просмотров: 23)

  4. Вверх #2844
    Японамать

    Аватар для Хаки
    Пол
    Женский
    Сообщений
    25,176
    Репутация
    27021
    Цитата Сообщение от rosst Посмотреть сообщение
    Народ, подскажите)) читал, читал и понял, что чукча не читатель, чукча - писатель )))) Запутался окончательно.
    Думали ставить кондишен в хрущевку двухкомнатную (стандартный панельный дом) - картинка ниже. Естественно (наверное все так по началу думают), предполагалось, что кондер будет один и будет размещаться в коридоре... полазив по форуму, понял, что мнение ошибочное, а также ээм порадовался ценам на всякие хорошие мультисплит системы. Подскажите, если делать с головой, то как лучше поступить - какие кондишены, как ставить. Пока речь о бюджете до 1k зеленых (такой был расклад до углубления в тему), в крайнем случае придется поставить сначала один, а позже в другую.. Но хотелось бы сначала понять, как лучше и какие суммы тут плавают, может и бюджет можно будет подвинуть.

    зы. да.. бывают порой падения напряжения, хотя летом это редкость.. 4х киловатная стиралка заводится нормально, а зимой - сложновато. Инверторы как я понял менее требовательны к напряжению?
    У моей кумы такая планировка. Ставили ей 12 в гостиную и в принципе во всей квартире нормально. Сторону света не указали. Инвертора, наоборот, как раз к скачкам напряжения и чувствительны.
    Думай, когда говоришь. Думай, кому говоришь. Думай, что говоришь.

  5. Вверх #2845
    Официальный рекламодатель Аватар для ОДЕССА КЛИМАТ
    Пол
    Мужской
    Адрес
    Одесса
    Сообщений
    1,771
    Репутация
    394
    Цитата Сообщение от rosst Посмотреть сообщение
    Народ, подскажите)) читал, читал и понял, что чукча не читатель, чукча - писатель )))) Запутался окончательно.
    Думали ставить кондишен в хрущевку двухкомнатную (стандартный панельный дом) - картинка ниже. Естественно (наверное все так по началу думают), предполагалось, что кондер будет один и будет размещаться в коридоре... полазив по форуму, понял, что мнение ошибочное, а также ээм порадовался ценам на всякие хорошие мультисплит системы. Подскажите, если делать с головой, то как лучше поступить - какие кондишены, как ставить. Пока речь о бюджете до 1k зеленых (такой был расклад до углубления в тему), в крайнем случае придется поставить сначала один, а позже в другую.. Но хотелось бы сначала понять, как лучше и какие суммы тут плавают, может и бюджет можно будет подвинуть.

    зы. да.. бывают порой падения напряжения, хотя летом это редкость.. 4х киловатная стиралка заводится нормально, а зимой - сложновато. Инверторы как я понял менее требовательны к напряжению?
    В 1к.Вложитесь в качественный Китай,нужен вам скорей всего 12й. и 7ка.Укажите расположение сторон,инвертора как раз и чувствительны к перепадам напряжения!

  6. Вверх #2846
    мираж Аватар для rosst
    Пол
    Мужской
    Адрес
    black hole
    Возраст
    44
    Сообщений
    2,353
    Репутация
    490
    Цитата Сообщение от Хакамада Посмотреть сообщение
    У моей кумы такая планировка. Ставили ей 12 в гостиную и в принципе во всей квартире нормально. Сторону света не указали. Инвертора, наоборот, как раз к скачкам напряжения и чувствительны.
    Понятно.. а 12 это что - мощность или (постоянно тут встречаю, но так и не понял что это)? )) Утром солнце в окна светит, вечером уходит на другую сторону дома. Душно становится после 13-14 часов дня, наверное, из-за нагрева крыши (последний этаж)

    upd. если смотреть на рисунок то восход бьет в окна внизу рисунка ))

  7. Вверх #2847
    Не покидает форум Аватар для Soxo
    Пол
    Мужской
    Адрес
    Одесса
    Сообщений
    14,105
    Репутация
    2038
    При таких площадях таки не имеет смысла ставить в коридор( если уж и ставить то тока Инвертор, а 12 инвертор у вас по цене перебьёт два отдельных простых и ранво нет особого смысла).
    Мультисплиты- тут советовал бы ток в варианте когда по наруже проблемно поставить более одного наружного блока, если возможно - так не имеет смысла бо в цене переплатите от 40 и более процентов.
    Ставьте 7ку и 12( если север то и 9 пойдёт), чем то брендовым конечно не впишитесь ( бо бюджет на такие площади будет 1500-2000), но при этом есть варианты де вполне и надёжно и впишитесь ( той же мидеей в притирочку с монтажём впишитесь).
    У него была дурная репутация - он всегда говорил то, что думал.

  8. Вверх #2848
    Официальный рекламодатель Аватар для ОДЕССА КЛИМАТ
    Пол
    Мужской
    Адрес
    Одесса
    Сообщений
    1,771
    Репутация
    394
    Цитата Сообщение от rosst Посмотреть сообщение
    Понятно.. а 12 это что - мощность или? )) Утром солнце в окна светит, вечером уходит на другую сторону дома. Душно становится после 13-14 часов дня, наверное, из-за нагрева крыши (последний этаж)
    12й.это 3.5кв.т тепловой энергии,7ка.2кв.т,9ка.2.5кв.т

  9. Вверх #2849
    мираж Аватар для rosst
    Пол
    Мужской
    Адрес
    black hole
    Возраст
    44
    Сообщений
    2,353
    Репутация
    490
    так спасибо за советы! А чем плохи китайские? Может лучше поставить сначала в гостиную (но что то более-менее приличное), а потом добавить еще, если будет необходимость?

  10. Вверх #2850
    Не покидает форум Аватар для Soxo
    Пол
    Мужской
    Адрес
    Одесса
    Сообщений
    14,105
    Репутация
    2038
    Цитата Сообщение от rosst Посмотреть сообщение
    так спасибо за советы! А чем плохи китайские? Может лучше поставить сначала в гостиную (но что то более-менее приличное), а потом добавить еще, если будет необходимость?
    Китай китаю рознь).
    Советую почитать статейку) уж пару лет ей ну таки во многом интерестна потребителю задающими вопросы почему Китай или не Китай.

    http://www.tehnos.com.ua/index.php?show_aux_page=11
    У него была дурная репутация - он всегда говорил то, что думал.

  11. Вверх #2851
    мираж Аватар для rosst
    Пол
    Мужской
    Адрес
    black hole
    Возраст
    44
    Сообщений
    2,353
    Репутация
    490
    Цитата Сообщение от Soxo Посмотреть сообщение
    Китай китаю рознь).
    Советую почитать статейку) уж пару лет ей ну таки во многом интерестна потребителю задающими вопросы почему Китай или не Китай.

    http://www.tehnos.com.ua/index.php?show_aux_page=11
    спасибо, прочитал. Но я имел в виду не сборку (понятно что многое там собирается), а именно производителей. Вы же работаете с кондерами постоянно и видите какая техника вызывает больше нареканий - стоит ли сэкономить и поставить LG/Balu и т.д или надо смотреть в сторону panasonic/mitsubishi heavi и подобного. ME и daikin я даже не рассматриваю - слишком кусюче по ценам))

  12. Вверх #2852
    Официальный рекламодатель Аватар для ОДЕССА КЛИМАТ
    Пол
    Мужской
    Адрес
    Одесса
    Сообщений
    1,771
    Репутация
    394
    LG я бы вообще выкинул из этого списка,смотрите на Midea под ваш бюджет можно подобрать интересные модельки,Ballu к стати тоже,довольно так и приличные кондиционеры!

  13. Вверх #2853
    Постоялец форума Аватар для andriyBog
    Пол
    Мужской
    Адрес
    Одеса, Україна
    Возраст
    45
    Сообщений
    1,522
    Репутация
    1391
    сколько обойдётся обслуживание кондиционера?
    он перестал работать на холод

  14. Вверх #2854
    Живёт на форуме Аватар для Lidasik
    Пол
    Женский
    Адрес
    Одесса, Таирова
    Возраст
    51
    Сообщений
    3,813
    Репутация
    3513
    Цитата Сообщение от andriyBog Посмотреть сообщение
    сколько обойдётся обслуживание кондиционера?
    он перестал работать на холод
    а во сколько обойдется ремонт машины, если она перестала ездить?
    нужно вызывать специалиста и разбираться в чем причина.

  15. Вверх #2855
    Официальный рекламодатель Аватар для ОДЕССА КЛИМАТ
    Пол
    Мужской
    Адрес
    Одесса
    Сообщений
    1,771
    Репутация
    394
    Цитата Сообщение от andriyBog Посмотреть сообщение
    сколько обойдётся обслуживание кондиционера?
    он перестал работать на холод
    Хоть напишите,что с ним происходит и какой кондиционер (модельку)

  16. Вверх #2856
    Постоялец форума Аватар для 007
    Пол
    Мужской
    Адрес
    od.ua
    Возраст
    40
    Сообщений
    1,288
    Репутация
    422
    Подскажите плз телефончик сервисного центра Samsung по ремонту кондиционеров, заправка фрионом мне не помогла

  17. Вверх #2857
    Официальный рекламодатель Аватар для ОДЕССА КЛИМАТ
    Пол
    Мужской
    Адрес
    Одесса
    Сообщений
    1,771
    Репутация
    394
    Цитата Сообщение от 007 Посмотреть сообщение
    Подскажите плз телефончик сервисного центра Samsung по ремонту кондиционеров, заправка фрионом мне не помогла
    http://www.samsung.com/ua_ru/support/servicelocation.do Но я вам сразу скажу,де монтировать и устанавливать обратно они не будут,всё равно придётся обращаться в монтажную организацию!

  18. Вверх #2858
    Постоялец форума Аватар для 007
    Пол
    Мужской
    Адрес
    od.ua
    Возраст
    40
    Сообщений
    1,288
    Репутация
    422
    Цитата Сообщение от tvashtar Посмотреть сообщение
    http://www.samsung.com/ua_ru/support/servicelocation.do Но я вам сразу скажу,де монтировать и устанавливать обратно они не будут,всё равно придётся обращаться в монтажную организацию!
    Cпасибо, ну это понятно про монтаж..

  19. Вверх #2859
    Не покидает форум Аватар для Livesms
    Пол
    Мужской
    Адрес
    Черноморск (Ильичевск)
    Сообщений
    5,236
    Репутация
    1579
    Можно ли в 500уе вложиться и взять простой сплит с установкой без всяких наворотов (дешево и сердито), что б холодил.
    Если да - дайте модели, название для ориентира.

  20. Вверх #2860
    Официальный рекламодатель Аватар для ОДЕССА КЛИМАТ
    Пол
    Мужской
    Адрес
    Одесса
    Сообщений
    1,771
    Репутация
    394
    Цитата Сообщение от Livesms Посмотреть сообщение
    Можно ли в 500уе вложиться и взять простой сплит с установкой без всяких наворотов (дешево и сердито), что б холодил.
    Если да - дайте модели, название для ориентира.
    Какая мощность кондиционера?


Ответить в теме
Страница 143 из 1796 ПерваяПервая ... 43 93 133 141 142 143 144 145 153 193 243 643 1143 ... ПоследняяПоследняя

Метки этой темы

Социальные закладки

Социальные закладки

Ваши права

  • Вы не можете создавать новые темы
  • Вы не можете отвечать в темах
  • Вы не можете прикреплять вложения
  • Вы не можете редактировать свои сообщения