Тема: Металлопластиковые окна

Ответить в теме
Страница 1023 из 1387 ПерваяПервая ... 23 523 923 973 1013 1021 1022 1023 1024 1025 1033 1073 1123 ... ПоследняяПоследняя
Показано с 20,441 по 20,460 из 27735
  1. Вверх #20441
    Постоялец форума Аватар для TIMART
    Пол
    Мужской
    Адрес
    Одеса.Незалежна вiд мордору Україна
    Возраст
    45
    Сообщений
    2,113
    Репутация
    1393
    Прочел три книжки : первую, зеленую и букварь, ху*ло ласты поклеит могу еще первую страницу газеты прочесть
    Волонтер противотанкового дивiзiону 28-ої ОМБр. Танки/гайки :)


  2. Вверх #20442
    User banned
    Пол
    Мужской
    Адрес
    Одесса
    Возраст
    54
    Сообщений
    12,194
    Репутация
    3702
    Цитата Сообщение от TIMART Посмотреть сообщение
    Прочел три книжки : первую, зеленую и букварь, ху*ло ласты поклеит могу еще первую страницу газеты прочесть
    Хвалиться тут нечем, а то, что это был только букварь и так заметно, мог бы не уточнять)

  3. Вверх #20443
    Постоялец форума Аватар для TIMART
    Пол
    Мужской
    Адрес
    Одеса.Незалежна вiд мордору Україна
    Возраст
    45
    Сообщений
    2,113
    Репутация
    1393
    Еще прочел : "как правильно тролить ватников"
    Волонтер противотанкового дивiзiону 28-ої ОМБр. Танки/гайки :)

  4. Вверх #20444
    Посетитель Аватар для Schoene
    Пол
    Женский
    Сообщений
    283
    Репутация
    397
    Посоветуйте, пожалуйста. Необходимо поменять старое окно с дверью, которые выходят на балкон. Размер, наверное, стандартный в двухкомнатной хрущевке. Интересует самый бюджетный энергосберегающий вариант нормального качества. Окно может быть глухим. Подоконник символический, т.е. без функций.

  5. Вверх #20445
    Живёт на форуме Аватар для Татьяна_к
    Пол
    Женский
    Сообщений
    4,727
    Репутация
    2663
    Всем доброго дня!
    Хочу узнать прибл стоимость окон на лоджию.Профиль 70ка, энергосбер., 5 камерные.Интересует хорошее качество..Даю картинку.Нажмите на изображение для увеличения
Название: окно кухня.jpg
Просмотров: 54
Размер:	45.6 Кб
ID:	10184877
    Последний раз редактировалось Татьяна_к; 16.08.2015 в 16:21.

  6. Вверх #20446
    Посетитель Аватар для АЛЁНА13
    Пол
    Женский
    Адрес
    ОДЕССА
    Возраст
    45
    Сообщений
    103
    Репутация
    157
    Добрый день сколько будут стоить окна с установкой
    ОКНО 1290 х 1360 кухня
    ОКНО 2080 х 1360 спальня

  7. Вверх #20447
    Постоялец форума Аватар для Flymean
    Пол
    Мужской
    Адрес
    Одесса
    Сообщений
    1,601
    Репутация
    741
    Цитата Сообщение от Татьяна_к Посмотреть сообщение
    Всем доброго дня!
    Хочу узнать прибл стоимость окон на лоджию.Профиль 70ка, энергосбер., 5 камерные.Интересует хорошее качество..Даю картинку.Вложение 10184877
    насколько четко оформлено требование!.. а я женат!.. даже предложение неудобно делать...

  8. Вверх #20448
    Новичок Аватар для natella_23
    Пол
    Женский
    Возраст
    44
    Сообщений
    95
    Репутация
    69
    Добрый день, нужно просчитать окна. Окно размер 2,00*1,20 (ширина) 3-х профиль REHAU EURO-60 +,однокамерный энергоэффективный стеклопакет заполненный аргоном,а подоконник Данке 60см, отлив 10см. + москитная сетка. Окно разделить на 2-е равные части (ширина 60см)одна глухая, а вторая на открытие и проветривание. Цена интересует с установкой и доставкой. И будет ли скидка, если таких окон 4 шт. И еще 1 окно 2,00*0,60(ширина) на открытие и проветривание.
    Мы дождались. наше счастье родилась на Рождество!

  9. Вверх #20449
    Новичок Аватар для natella_23
    Пол
    Женский
    Возраст
    44
    Сообщений
    95
    Репутация
    69
    Всем огромное спасибо, за просчеты. Хотелось бы узнать Ваши рекомендации и отзывы о Тим-Арте и МикомПласт
    Мы дождались. наше счастье родилась на Рождество!

  10. Вверх #20450
    Не покидает форум Аватар для Livesms
    Пол
    Мужской
    Адрес
    Черноморск (Ильичевск)
    Сообщений
    5,236
    Репутация
    1574
    Цитата Сообщение от natella_23 Посмотреть сообщение
    Всем огромное спасибо, за просчеты. Хотелось бы узнать Ваши рекомендации и отзывы о Тим-Арте и МикомПласт
    Я заказывал окна у Тим-Арт. Оставлял свой позитивный отзыв в их теме.

  11. Вверх #20451
    User banned
    Пол
    Мужской
    Возраст
    48
    Сообщений
    247
    Репутация
    128
    Цитата Сообщение от Татьяна_к Посмотреть сообщение
    Всем доброго дня!
    Хочу узнать прибл стоимость окон на лоджию.Профиль 70ка, энергосбер., 5 камерные.Интересует хорошее качество..Даю картинку.Вложение 10184877
    Неберите энего сберегающие это фуфло. никто не считал насколько они сберегающие. якобы их наполняют аргоном и инертный газ защитит вас от теплопотерь...ля ля ля ля ля...
    я знаю за что пишу ! там надо соблюсти столько тонких моментов, что бы оно стало эффективным... шо капец ... а на потоке на от+=6ись никто нормально не сделает. а денежку заплатите как за немецкое качество...
    и проверить и что-то доказать что вам тульнули фуфел вы не сможете... так как вы точно не специалист.

    да даже если и сделают нормально все одно за год эхфект закончитсо!
    (за сообщение надо поставить плюсик)

  12. Вверх #20452
    User banned
    Пол
    Мужской
    Адрес
    Одесса
    Возраст
    54
    Сообщений
    12,194
    Репутация
    3702
    Цитата Сообщение от okeannik Посмотреть сообщение
    Неберите энего сберегающие это фуфло. никто не считал насколько они сберегающие. якобы их наполняют аргоном и инертный газ защитит вас от теплопотерь...ля ля ля ля ля...
    я знаю за что пишу ! там надо соблюсти столько тонких моментов, что бы оно стало эффективным... шо капец ... а на потоке на от+=6ись никто нормально не сделает. а денежку заплатите как за немецкое качество...
    и проверить и что-то доказать что вам тульнули фуфел вы не сможете... так как вы точно не специалист.

    да даже если и сделают нормально все одно за год эхфект закончитсо!
    (за сообщение надо поставить плюсик)
    Ну что вы пишете? Вы не являетесь специалистом в области окон, да и судя по написанному специалистом в теплотехнике тоже. Абсолютно дилетантское суждение о вопросах, в которых вы разбираетесь еще меньше, чем в ядерной физике.
    Энергосберегающие стекла используются уже ни один десяток лет. Эффективность их доказана и описана в технической документации. Тут и спорить не о чем.
    Проверить эффективность легко и просто. Погуглите о тепловизорах. И даже без специальных приборов, путем тактильных ощущений при прохождении тепла от простой электрической лампы.
    Энергосберегающие стеклопакеты существуют давно, технология их производства развивается и отработана до мелочей. При сборке в заводских условиях нет никаких проблем.
    Более того, параметры энергосберегающих стеклопакетов давным давно зафиксированы ГОСТ и ДСТУ.
    Так что я бы за ваше сообщение поставил жирный минус, как за то, что несет дезинформацию другим гражданам. Нужно книжки читать или хотя бы интернет)

  13. Вверх #20453
    Постоялец форума Аватар для GraySH
    Пол
    Мужской
    Адрес
    Одесса
    Возраст
    47
    Сообщений
    1,893
    Репутация
    928
    Цитата Сообщение от okeannik Посмотреть сообщение
    Неберите энего сберегающие это фуфло. никто не считал насколько они сберегающие. якобы их наполняют аргоном и инертный газ защитит вас от теплопотерь...ля ля ля ля ля...
    я знаю за что пишу ! там надо соблюсти столько тонких моментов, что бы оно стало эффективным... шо капец ... а на потоке на от+=6ись никто нормально не сделает. а денежку заплатите как за немецкое качество...
    и проверить и что-то доказать что вам тульнули фуфел вы не сможете... так как вы точно не специалист.

    да даже если и сделают нормально все одно за год эхфект закончитсо!
    (за сообщение надо поставить плюсик)
    Автор, откройте, пожалуйста, оконную фирму. Мне очень хочется, чтоб Вы продавали окна так, как пишете об этом.
    Будете очень выделяться
    Последний раз редактировалось GraySH; 20.08.2015 в 15:10.
    Личное - в дневнике.

  14. Вверх #20454
    User banned
    Пол
    Мужской
    Возраст
    48
    Сообщений
    247
    Репутация
    128
    Цитата Сообщение от BMW530 Посмотреть сообщение
    Ну что вы пишете? Вы не являетесь специалистом в области окон, да и судя по написанному специалистом в теплотехнике тоже. Абсолютно дилетантское суждение о вопросах, в которых вы разбираетесь еще меньше, чем в ядерной физике.
    Энергосберегающие стекла используются уже ни один десяток лет. Эффективность их доказана и описана в технической документации. Тут и спорить не о чем.
    Проверить эффективность легко и просто. Погуглите о тепловизорах. И даже без специальных приборов, путем тактильных ощущений при прохождении тепла от простой электрической лампы.
    Энергосберегающие стеклопакеты существуют давно, технология их производства развивается и отработана до мелочей. При сборке в заводских условиях нет никаких проблем.
    Более того, параметры энергосберегающих стеклопакетов давным давно зафиксированы ГОСТ и ДСТУ.
    Так что я бы за ваше сообщение поставил жирный минус, как за то, что несет дезинформацию другим гражданам. Нужно книжки читать или хотя бы интернет)
    да да да ... бла бла бла...
    говорить -не ответить за базар.
    убедите меня цифрами и авторитетным именем. а так говорить можно всякое .
    я знаю как делаются замеры стендовые и как делается это наполнение в реальном производстве. а вы знаете?

    то было раз
    а двас то что если контора вам таки тульнула фуфло то ее потом не поймаешь и ваши тактильные ощущения в суде не предъявишь.
    ваще бред! аргон спаситель..
    вы хоть знаете что такое холодовые мостики ? какое у вас образование?

    так что не надо ля ля!

    про нету никаких проблем при сборке-расскажите лохам и про ГОСТ ДОСТ ТОСТ СНиП туда же!

  15. Вверх #20455
    User banned
    Пол
    Мужской
    Адрес
    Одесса
    Возраст
    54
    Сообщений
    12,194
    Репутация
    3702
    Цитата Сообщение от okeannik Посмотреть сообщение
    да да да ... бла бла бла...
    говорить -не ответить за базар.
    убедите меня цифрами и авторитетным именем. а так говорить можно всякое .
    я знаю как делаются замеры стендовые и как делается это наполнение в реальном производстве. а вы знаете?

    то было раз
    а двас то что если контора вам таки тульнула фуфло то ее потом не поймаешь и ваши тактильные ощущения в суде не предъявишь.
    ваще бред! аргон спаситель..
    вы хоть знаете что такое холодовые мостики ? какое у вас образование?

    так что не надо ля ля!

    про нету никаких проблем при сборке-расскажите лохам и про ГОСТ ДОСТ ТОСТ СНиП туда же!
    Образование высшее техническое с красным дипломом (политех) подходит?))
    Кроме этого опыт работы в оконной сфере с 1998 по настоящее время... подходит?
    А что есть у вас? Судят по текстам 3 класса церковно-приходской школы))

  16. Вверх #20456
    User banned
    Пол
    Мужской
    Возраст
    48
    Сообщений
    247
    Репутация
    128
    мне кажется вам нечего написать. держите себя в руках! у меня самое высшее семейно-строительное с пластиковым дипломом.

    сколько стоит ваша тепловизионная проверка? дает ли она вывод по результатам сколько сбережено тепла? 70 %? может 7%? может 0%?

    дешевые рекламные трюки... оптимизация энерго технологий ... тьфу!

  17. Вверх #20457
    User banned
    Пол
    Мужской
    Адрес
    Одесса
    Возраст
    54
    Сообщений
    12,194
    Репутация
    3702
    Цирк уехал, а клоуны остались...
    О чем можно говорить с человеком, которые не доверяет ГОСТ и ДСТУ и при этом с семейно-строительным образованием)
    Я уже боюсь сказать о теплопроводности и коэффициенте сопротивления теплопередаче. Но в общем и целом, именно по этим значениям и рассчитываются теплопотери при проектировании зданий. А ГОСТ и ДСТУ рекомендуют устанавливать определенные стеклопакеты в определенных климатических зонах.

    P.S. Вы имеете право на свое мнение, даже если оно в корне не верное. Но противопоставлять себя официальным источникам (над которыми трудились сотни людей и не только в нашей стране) - это глупо, даже при наличии специального образования, а при его отсутствии просто идиотизм.

  18. Вверх #20458
    Частый гость Аватар для Mirana26
    Пол
    Женский
    Адрес
    Одесса мой город родной...
    Возраст
    41
    Сообщений
    953
    Репутация
    599
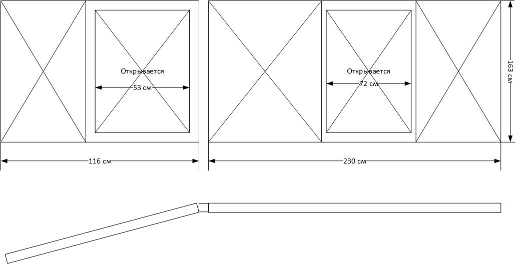
    добрый день! Посчитайте пожалуйста стоимость такого окна Rehau.
    Без демонтажа.
    1 дополнительный профиль сверху.
    Размер проема - высота 162 см, ширина 217 см.
    2 крайних окна открываются и на проветривание, посередине глухое, 3 форточки вверху глухие (высота 40 см).
    2 сетки, 2 отлива, 1 подоконник 20 см, 2 замочка от детей

    Окно типа как на фото

    Мне во всем сопутствует удача!!!

  19. Вверх #20459
    User banned
    Пол
    Мужской
    Адрес
    Одесса
    Возраст
    54
    Сообщений
    12,194
    Репутация
    3702
    Цитата Сообщение от Mirana26 Посмотреть сообщение
    добрый день! Посчитайте пожалуйста стоимость такого окна Rehau.
    Без демонтажа.
    1 дополнительный профиль сверху.
    Размер проема - высота 162 см, ширина 217 см.
    2 крайних окна открываются и на проветривание, посередине глухое, 3 форточки вверху глухие (высота 40 см).
    2 сетки, 2 отлива, 1 подоконник 20 см, 2 замочка от детей

    Окно типа как на фото

    А зачем вам при такой высоте отсекать фрамугу? 1620 легко делается открывающимся на всю высоту. Тем более, что "форточки" глухие. Мыть глухие части крайне неудобно.

  20. Вверх #20460
    Постоялец форума Аватар для Flymean
    Пол
    Мужской
    Адрес
    Одесса
    Сообщений
    1,601
    Репутация
    741
    Цитата Сообщение от BMW530 Посмотреть сообщение
    А зачем вам при такой высоте отсекать фрамугу? 1620 легко делается открывающимся на всю высоту. Тем более, что "форточки" глухие. Мыть глухие части крайне неудобно.
    на фото красиво смотрится... правда, там два раза с хвостиком по 2.17... но смотрится!


Ответить в теме
Страница 1023 из 1387 ПерваяПервая ... 23 523 923 973 1013 1021 1022 1023 1024 1025 1033 1073 1123 ... ПоследняяПоследняя

Метки этой темы

Социальные закладки

Социальные закладки

Ваши права

  • Вы не можете создавать новые темы
  • Вы не можете отвечать в темах
  • Вы не можете прикреплять вложения
  • Вы не можете редактировать свои сообщения